






RÉNOVATION GLOBALE D’UN ENSEMBLE DE 1880
Notre intervention sur cet ensemble résidentiel du XIXème siècle illustre notre approche globale de la rénovation en copropriété, alliant préservation du patrimoine, performance énergétique et amélioration du confort des habitants.
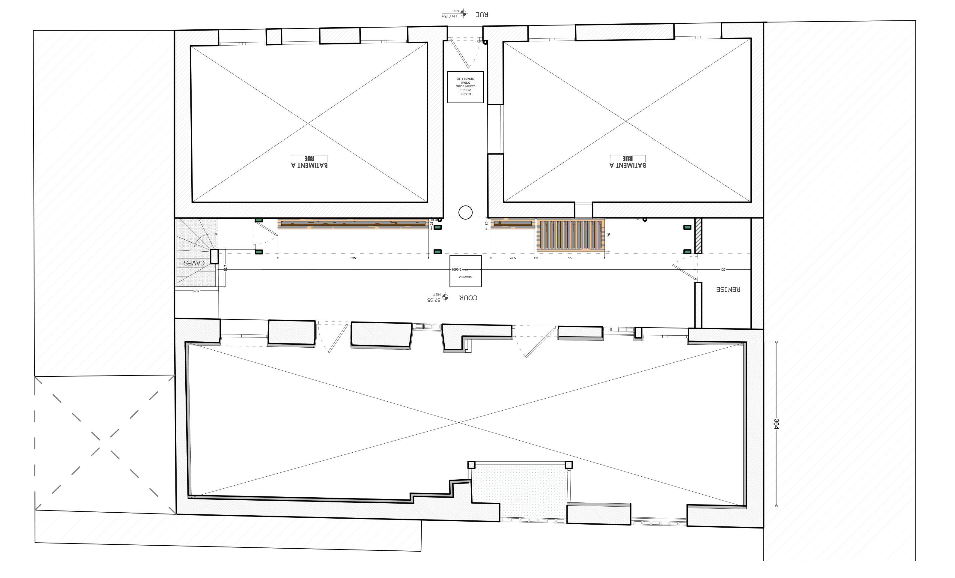
DIAGNOSTIC ET CONCEPTION
Notre mission a débuté par une analyse approfondie des parties communes, combinant diagnostics thermique et structurel. Cette étape cruciale a permis d’établir une stratégie d’intervention cohérente et hiérarchisée.
AMÉLIORATION ÉNERGÉTIQUE
La performance thermique du bâtiment est significativement améliorée grâce à :
- Une isolation extérieure en béton de chanvre, matériau biosourcé alliant performance thermique et respect du bâti ancien
- Le remplacement systématique des menuiseries sur cour, optimisant l’isolation tout en préservant l’harmonie architecturale
RÉNOVATION STRUCTURELLE
Les interventions techniques ont ciblé les points essentiels:
- Reprise partielle des charpentes et planchers
- Réfection des toitures avec optimisation des évacuations pluviales et eaux usées
- Restructuration complète du bâtiment sur cour (R+3)
Cette rénovation démontre notre capacité à coordonner des travaux complexes en site occupé, tout en respectant les contraintes d’une copropriété ancienne.
Lieu: Paris, 75
Programme: Rénovation des parties communes
Maitrise d’ouvrage: Copro
Mission: Complète
Calendrier: En cours
Photographie: @Eona Studio
